Helle Souterrainräume in Höntrop! (ehemalige Arztpraxis)

Video zu dieser Immobilie
3D-Rundgang zu dieser Immobilie
Datenblatt
ImmoNr 1674
Nutzungsart Gewerbe
Vermarktungsart Miete
Objektart Büro/Praxen
Objekttyp Praxisfläche
PLZ 44869
Ort Bochum
Straße Böcklinweg
Hausnummer 26
Land Deutschland
Gesamtfläche 93 m²
Bürofläche 93 m²
Gewerbefläche 93 m²
ImmoNr 1674 Nutzungsart Gewerbe
Vermarktungsart Miete Objektart Büro/Praxen
Objekttyp Praxisfläche PLZ 44869
Ort Bochum Straße Böcklinweg
Hausnummer 26 Land Deutschland
Gesamtfläche 93 m² Bürofläche 93 m²
Gewerbefläche 93 m²

Hinweis zur Provision:

Details zur Immobilie
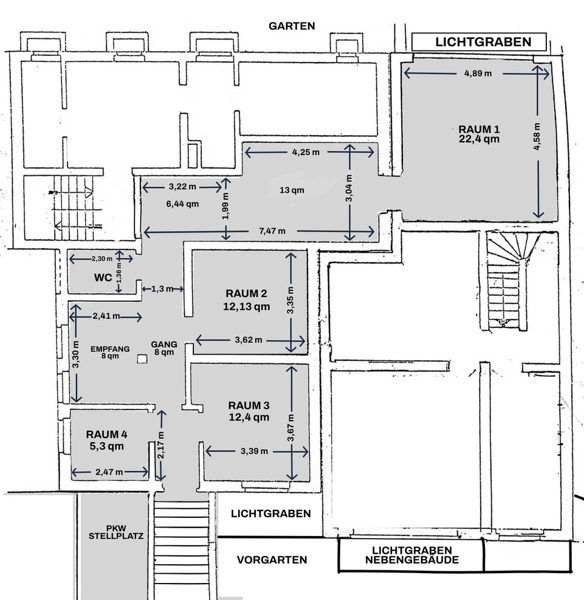
***Praktischer Grundriss*** helle Räumlichkeiten***Zweifamilienhaus***

Die hier angebotene Gewerbefläche hat eine Größe von insgesamt 93,3 qm.

Diese teilt sich folgender Maßen auf:

- freundlicher Eingangsbereich
- Empfangsbereich
- 3 Behandlungszimmer
- 2 Wartebereiche
- 1 WC Anlage.

Die Gewerbefläche war langjährig (seit 35 Jahren) an eine Allgemeinmedizinerin vermietet.
Ideal eignet sich diese Fläche daher für eine Büronutzung, einen Zahnarzt (Alleinstellungsmerkmal im Umkreis von 3 km), eine Orthopädie, eine Physiotherapie/Massage oder ein Kosmetikstudio/Fußpflege.

Die Fläche steht zum Jahreswechsel (01.01.2026) zur Anmietung frei.

Folgende Renovierungsarbeiten werden seitens des Eigentümers noch durchgeführt:

- Einbau einer neuen Eingangstür
- Erneuerung der gesamten Elektroinstallationen
- Austausch der älteren Heizkörper
- Austausch des Fensters in Raum 1 (lt. Grundriss)

Es ist positiv zu vermerken, dass das Objekt trotz der Souterrainlage, über ausreichend Helligkeit verfügt!

Ein KFZ-Stellplatz kann optional angemietet werden (50,00€ zusätzlich).

Der Energieausweis ist in Bearbeitung und liegt zur Besichtigung vor.

Bei Interesse senden Sie uns bitte eine Anfrage! Telefonische Anfragen können nicht bearbeitet werden.

Hinweis!
Bitte haben Sie Verständnis dafür, dass wir Ihnen nur einen Besichtigungstermin anbieten, wenn Sie sich im Vorfeld die Lage/Adresse des Hauses angeschaut haben!
Die langjährig vermietete Praxisfläche wartet mit folgender Ausstattung auf:

- neue Eingangstür
- komplett neue Elektroinstallationen
- größtenteils neue Heizkörper
- moderner Boden
- praktischer Grundriss
- WC Anlage
- Zweifamilienhauscharakter und vieles mehr....

Das Objekt ist ab dem 01.01.2026 bezugsfrei.
Die Gewerbefläche befindet sich im Stadtteil Höntrop, einem ruhigen Wohngebiet im Südwesten Bochums. Der Böcklinweg ist eine Anliegerstraße.

Umgebung und Infrastruktur

Höntrop zeichnet sich durch eine gute Wohnqualität aus, mit einer Mischung aus Einfamilienhäusern und kleineren Mehrfamilienhäusern. Die Anbindung an den öffentlichen Nahverkehr ist gut, und Einkaufsmöglichkeiten sowie Schulen und Kindergärten sind in der Nähe vorhanden.

Buslinien: Die Buslinie 389 hält an der nahegelegenen Haltestelle Rembrandtweg, die fußläufig erreichbar ist. Diese Linie verbindet Höntrop mit anderen Stadtteilen und dem Bochumer Hauptbahnhof.

S-Bahn: Der Bahnhof Bochum-Höntrop ist ebenfalls in der Nähe und bietet Anschluss an die S-Bahn-Linie S1, die zwischen Dortmund und Solingen verkehrt.

Zusätzlich gibt es weitere Buslinien in der Umgebung, wie die Linien 344, 346 und 390, die zusätzliche Verbindungen innerhalb Bochums und zu benachbarten Städten bieten.

Insgesamt bietet der Böcklinweg 26 in Bochum-Höntrop eine ruhige Wohnlage mit guter Infrastruktur und medizinischer Versorgung, ideal für Familien und Berufstätige.
Auszeichnungen und Mitgliedschaft:

--- Reuter Immobilien gehört laut Focus zu den TOP-MAKLERUNTERNEHMEN in Deutschland
--- Zertifizierung nach DIN EN 15733
--- Mitglied im Competence Club der Immobilien - Profis
--- IVD Immobilienfortbildungszertifikat 2018
--- BNI (Business Network International)
--- Mitglied in der Immobilienbörse Ruhr-Lippe e.V.

Wir möchten höflich darauf hinweisen, dass die hier gemachten Angaben ausschließlich auf den uns vom Vermieter übermittelten Unterlagen und Daten basieren. Für die Richtigkeit und Vollständigkeit können wir keine Haftung übernehmen.

Sollten sie Fragen:

- zur Immobilie,

- zu unserer Rundumbetreuung für Eigentümer,

- zu unserer Leistungsgarantie haben?

oder wünschen Sie eine Bewertung Ihrer Immobilie?

Dann rufen Sie uns an unter: 0234/ 917 906 86 oder schreiben Sie uns: info@reuter-immobilien.info

Wir freuen uns auf Sie !

Ihr Reuter Immobilien Team
Netto Kaltmiete 980 €
Kaltmiete 980 €
Nebenkosten 150 €
Warmmiete 1.130 €
Währung
Kaution 3.390 €
Energieausweis Skala Energieausweis Zeiger
Baujahr 1965
wesentlicher Energieträger Öl
Details zur Immobilie
Energieausweisdaten
Energieausweis Skala Energieausweis Zeiger
Baujahr 1965
wesentlicher Energieträger Öl
Netto Kaltmiete 980 €
Kaltmiete 980 €
Nebenkosten 150 €
Warmmiete 1.130 €
Währung
Kaution 3.390 €
Beschreibung der Immobilie ***Praktischer Grundriss*** helle Räumlichkeiten***Zweifamilienhaus***

Die hier angebotene Gewerbefläche hat eine Größe von insgesamt 93,3 qm.

Diese teilt sich folgender Maßen auf:

- freundlicher Eingangsbereich
- Empfangsbereich
- 3 Behandlungszimmer
- 2 Wartebereiche
- 1 WC Anlage.

Die Gewerbefläche war langjährig (seit 35 Jahren) an eine Allgemeinmedizinerin vermietet.
Ideal eignet sich diese Fläche daher für eine Büronutzung, einen Zahnarzt (Alleinstellungsmerkmal im Umkreis von 3 km), eine Orthopädie, eine Physiotherapie/Massage oder ein Kosmetikstudio/Fußpflege.

Die Fläche steht zum Jahreswechsel (01.01.2026) zur Anmietung frei.

Folgende Renovierungsarbeiten werden seitens des Eigentümers noch durchgeführt:

- Einbau einer neuen Eingangstür
- Erneuerung der gesamten Elektroinstallationen
- Austausch der älteren Heizkörper
- Austausch des Fensters in Raum 1 (lt. Grundriss)

Es ist positiv zu vermerken, dass das Objekt trotz der Souterrainlage, über ausreichend Helligkeit verfügt!

Ein KFZ-Stellplatz kann optional angemietet werden (50,00€ zusätzlich).

Der Energieausweis ist in Bearbeitung und liegt zur Besichtigung vor.

Bei Interesse senden Sie uns bitte eine Anfrage! Telefonische Anfragen können nicht bearbeitet werden.

Hinweis!
Bitte haben Sie Verständnis dafür, dass wir Ihnen nur einen Besichtigungstermin anbieten, wenn Sie sich im Vorfeld die Lage/Adresse des Hauses angeschaut haben!
Ausstattung der Immobilie Die langjährig vermietete Praxisfläche wartet mit folgender Ausstattung auf:

- neue Eingangstür
- komplett neue Elektroinstallationen
- größtenteils neue Heizkörper
- moderner Boden
- praktischer Grundriss
- WC Anlage
- Zweifamilienhauscharakter und vieles mehr....

Das Objekt ist ab dem 01.01.2026 bezugsfrei.
Hier befindet sich die Immobilie Die Gewerbefläche befindet sich im Stadtteil Höntrop, einem ruhigen Wohngebiet im Südwesten Bochums. Der Böcklinweg ist eine Anliegerstraße.

Umgebung und Infrastruktur

Höntrop zeichnet sich durch eine gute Wohnqualität aus, mit einer Mischung aus Einfamilienhäusern und kleineren Mehrfamilienhäusern. Die Anbindung an den öffentlichen Nahverkehr ist gut, und Einkaufsmöglichkeiten sowie Schulen und Kindergärten sind in der Nähe vorhanden.

Buslinien: Die Buslinie 389 hält an der nahegelegenen Haltestelle Rembrandtweg, die fußläufig erreichbar ist. Diese Linie verbindet Höntrop mit anderen Stadtteilen und dem Bochumer Hauptbahnhof.

S-Bahn: Der Bahnhof Bochum-Höntrop ist ebenfalls in der Nähe und bietet Anschluss an die S-Bahn-Linie S1, die zwischen Dortmund und Solingen verkehrt.

Zusätzlich gibt es weitere Buslinien in der Umgebung, wie die Linien 344, 346 und 390, die zusätzliche Verbindungen innerhalb Bochums und zu benachbarten Städten bieten.

Insgesamt bietet der Böcklinweg 26 in Bochum-Höntrop eine ruhige Wohnlage mit guter Infrastruktur und medizinischer Versorgung, ideal für Familien und Berufstätige.
Sonstige Angaben zur Immobilie Auszeichnungen und Mitgliedschaft:

--- Reuter Immobilien gehört laut Focus zu den TOP-MAKLERUNTERNEHMEN in Deutschland
--- Zertifizierung nach DIN EN 15733
--- Mitglied im Competence Club der Immobilien - Profis
--- IVD Immobilienfortbildungszertifikat 2018
--- BNI (Business Network International)
--- Mitglied in der Immobilienbörse Ruhr-Lippe e.V.

Wir möchten höflich darauf hinweisen, dass die hier gemachten Angaben ausschließlich auf den uns vom Vermieter übermittelten Unterlagen und Daten basieren. Für die Richtigkeit und Vollständigkeit können wir keine Haftung übernehmen.

Sollten sie Fragen:

- zur Immobilie,

- zu unserer Rundumbetreuung für Eigentümer,

- zu unserer Leistungsgarantie haben?

oder wünschen Sie eine Bewertung Ihrer Immobilie?

Dann rufen Sie uns an unter: 0234/ 917 906 86 oder schreiben Sie uns: info@reuter-immobilien.info

Wir freuen uns auf Sie !

Ihr Reuter Immobilien Team
Diese Immobilien könnten Sie interessieren
Büro/Praxen in Bochum
Büro/Praxen in Bochum
Ansprechpartner

Frau Ramona Rogon
Hattingerstr. 882
44879 Bochum

Telefon 0234 91790686 E-Mail rogon@reuter-immobilien.info

Sofortanfrage
Ich bin mit den Datenschutzbestimmungen einverstanden.

Mit * gekennzeichnete Felder sind Pflichtangaben

Lage der Immobilie
Reuter Immobilien

Rufen Sie uns an. Wir freuen uns auf ein persönliches Gespräch.

02 34 - 91 79 06 86